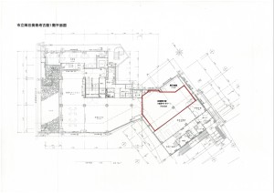
岡谷美術考古館では、令和3年2月中旬~3月中旬に、岡谷市ゆかりの若手アーティストによる展示を開催予定です。
市立岡谷美術考古館の1階 企画展示室を個展会場として無償で提供いたします。
ご希望の方はぜひご応募ください。
募集期間:令和2年8月1日(土)~9月18日(金)
※ 募集要項をお読みいただき、申請書にご記載のうえ、当館まで郵送またはご持参ください(下記からダウンロードできます)
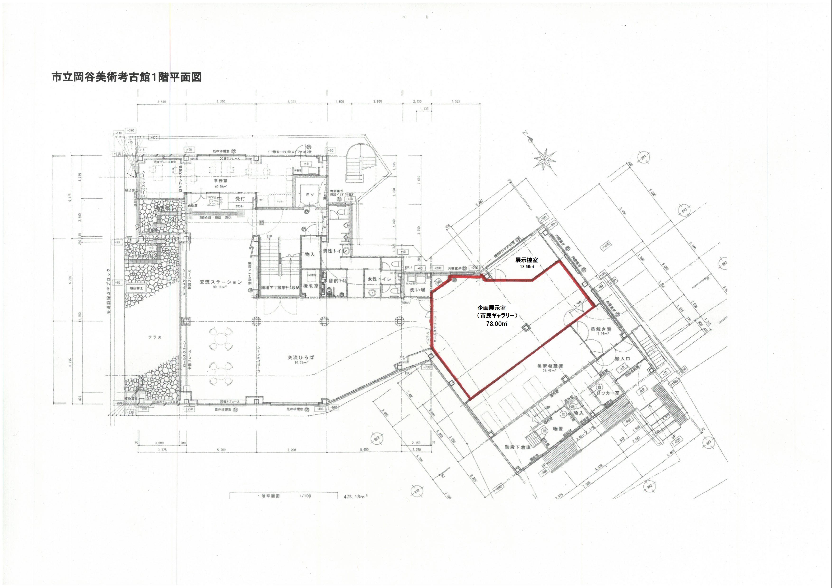
岡谷美術考古館では、令和3年2月中旬~3月中旬に、岡谷市ゆかりの若手アーティストによる展示を開催予定です。
市立岡谷美術考古館の1階 企画展示室を個展会場として無償で提供いたします。
ご希望の方はぜひご応募ください。
募集期間:令和2年8月1日(土)~9月18日(金)
※ 募集要項をお読みいただき、申請書にご記載のうえ、当館まで郵送またはご持参ください(下記からダウンロードできます)